EXCLUSIVA PROPIEDAD JUNTO A LA PLAZA MAYOR CON PERMISO TURÍSTICO Y GRAN POTENCIAL DE INVERSIÓN

  • 894,000€
, , 28008 Madrid, Madrid, Madrid

Overview

ID propiedad: IAG1640974
  • Piso
  • Tipo de propiedad
  • 5
  • Dormitorios
  • 3
  • Baños
  • 0
  • Garaje
  • 175
  • m2

Descripción

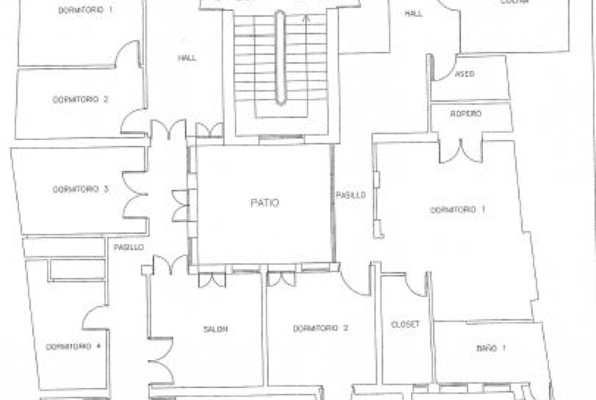
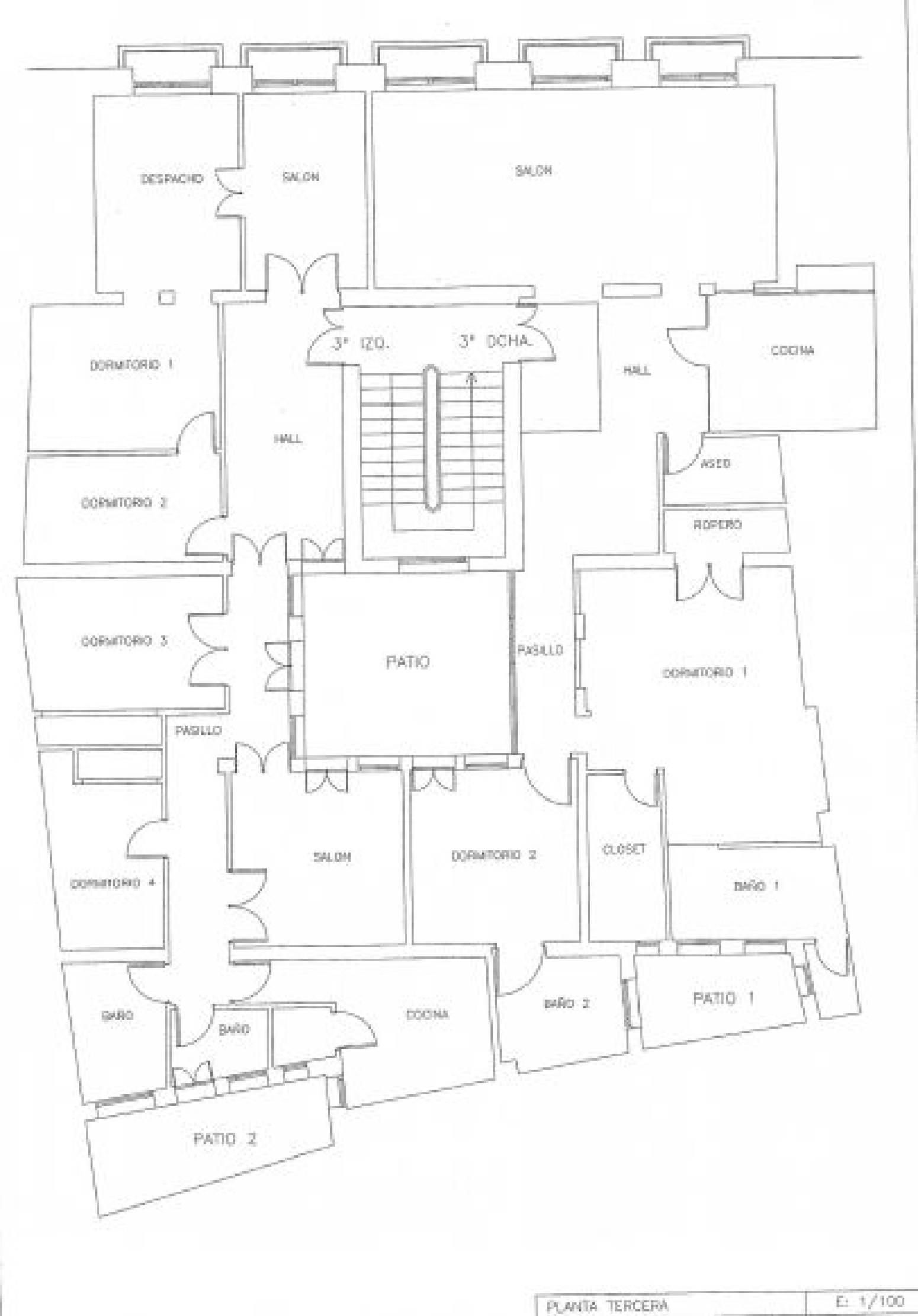
Ubicada en la tercera planta de un edificio histórico a pocos pasos de la Plaza Mayor, esta propiedad única se compone de dos fincas registrales: una vivienda principal de 146 m² útiles y una buhardilla de 13,5 m² en planta cuarta, ofreciendo una distribución amplia, versátil y llena de posibilidades.

Destacan sus 2 balcones a la calle, que aportan luz natural y encanto, junto con 5 dormitorios, un despacho y 2 baños. Además, cuenta con amplias zonas de estar, espacios de almacenamiento y dos patios interiores, que garantizan luminosidad y ventilación en toda la vivienda. Su configuración permite la segregación en dos unidades registrables en la planta tercera, lo que la convierte en una opción inmejorable tanto para residencia como para inversión. Existen antecedentes en el edificio.

PERMISO PARA USO TURÍSTICO – ALTA RENTABILIDAD GARANTIZADA

Esta propiedad dispone de autorización para explotación como piso turístico por los vecinos (edificio sin licencia del ayuntamiento), un valor añadido que la posiciona como una oportunidad excepcional en una de las zonas más cotizadas de Madrid. Existen antecedentes en el edificio.

EXISTENCIA DE INQUILINO DE LARGA DURACIÓN

Actualmente,  cuenta con un inquilino de renta antigua de 90 años en su segunda subrogación, lo que puede influir en la estrategia de inversión a largo plazo.  

Renta y gastos  a cargo del inquilino: 420,02 euros/renta, 97,05 euros por el ascensor, 174,18euros de gastos de comunidad y 90,70 de IBI. 

Una propiedad con historia, encanto y una ubicación inmejorable, ideal para quienes buscan una inversión segura y con alto potencial de revalorización.

Pidanos más información via correo o teléfono si quiere saber más información acerca de que familiares conviven con el inquilino firmante, fecha del contrato, edades, etc.

 

  • Ciudad Madrid
  • Provincia Madrid
  • Código Postal 28008
  • Area Sol
  • País Madrid

Detalles

Actualizado en abril 15, 2026 a 6:06 am
  • ID propiedad: IAG1640974
  • Precio: 894,000€
  • Tamaño de la propiedad: 175 m2
  • Dormitorios: 5
  • Baños: 3
  • Garaje: 0
  • Tipo de propiedad: Piso
  • Estado de la propiedad: Venta

Adicional

  • Ascensores: 1
  • Metros útiles: 160
  • Estado general: Entrar a vivir
  • Gastos comunidad: 174

Programar una visita

Tu información

Información del contacto

Ver listado
Re/max Moon

Consultar sobre esta propiedad

0 Comentario

Ordenar por:
Escribe una reseña

Escribe una reseña

Listados similares

Comparar listados

Comparar
Re/max Moon
  • Re/max Moon